군부대에서 사용하는
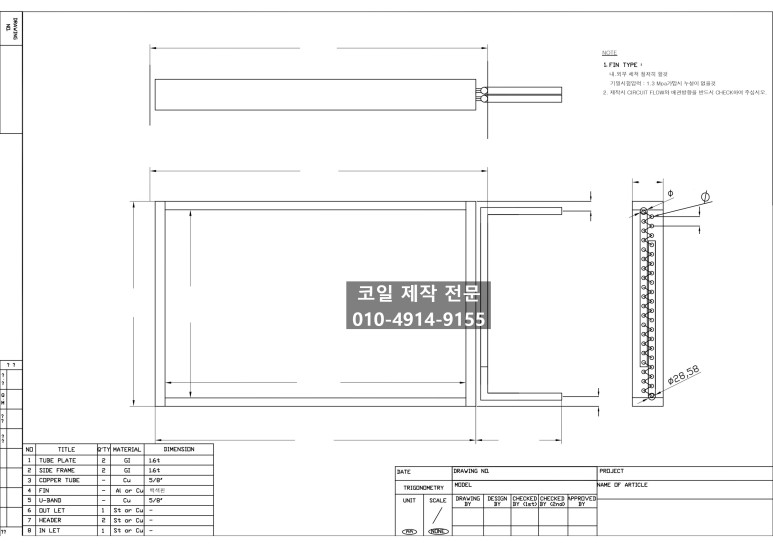
열교환기 온수 코일 주문 제작 방법을
소개해드리겠습니다.

제작을 위해
샘플을 공장으로 보내주셨습니다.
압력을 견디다 못해 헤더 부분이 비틀리고
누설부위를 용접하기 위해
수리한 흔적도 보입니다.

코일에 누수가 있다면
용접으로 쉽게 수리가 되지 않습니다.
비용만 이중으로 지출될 뿐이죠
보내주신 샘플을 가지고
도면을 그려봅니다.
앞으로는 번거롭게 샘플을 보낼 필요없이
작성한 도면만으로도
제작이 가능하도록
꼼꼼하게 CAD 작업을 합니다.

도면이 없는 코일이였는데
이제는 엄연한 도면있는 코일이 되었습니다.
도면이 완성되었겠다
바로 제작을 시작합니다.


최고급 재료를 가지고
누설없이 오래오래 사용하시도록
꼼꼼하게 제작해 드렸습니다.
동일한 제품들이 부대 내에
여러개가 있다고 하니
다음 제작시에는
소장하고 있는 도면만으로도
제작이 가능하겠습니다.

열교환핀은 AL 백색핀으로 제작했습니다.
코일은 2열 20단 입니다.
튜브 사이즈는 5/8" (15.88mm) 입니다.

제품을 출고하기 전
내부와 외부 세척을 철저히 진행하고 출고합니다.
물로 기밀 시험까지 1.3Mpa까지 가압후
누설이 없는 것을 확인합니다.

제작시 CIRCUIT FLOW와
배관 방향을 반드시 확인 후 작업을 진행해야
현장에서 손쉽게 교체 작업이 가능합니다.

코일에 있어서 중요한 배열도 입니다.
기존 배열도와 동일하게
배열도 작업을 해드렸습니다.
물론 배열도 방향을 도면에 표기해 드렸습니다.

아주 깔끔하게 코일이 완성되었네요

헤더와 코일과의 용접이
균일하고 꼼꼼하게 잘 나와습니다.
입출구 연결부도
현장에서 어려움없이
손쉽게 교체하도록
여유있게 배관을 빼드렸습니다.

U 밴드 또한 누설이 생기지 않도록
용접봉을 아낌없이 꼼꼼하게
용접해 드렸습니다~!

제품 수령시 누설여부를
한눈에 확인할 수 있도록
10kg/cm^2 질소 주입 후 누설확인 게이지까지
장착해 드렸습니다.
누설게이지는 현장에서 다른용도로
재사용이 가능한
실리콘 오일이 충전된 고급 게이지 입니다.

'공조기 응축기 열교환기 코일제작' 카테고리의 다른 글
| AHU 공조기 코일제작 열교환기 FANCOIL 공조기냉수코일 교체 제작 과정 소개 (0) | 2024.03.06 |
|---|---|
| 공조기 코일 제작 덕트 삽입형 스팀 난방코일 공조기 AHU 열교환기 라디에이터 제작 (0) | 2023.12.19 |
| 냉수온수 AHU, 공조기 코일 빠르게 제작하는 방법 이원냉동기응축기 제작 출고 (0) | 2023.10.25 |
| 열교환기 코일 주문 제작 바닥상치형 공조기 코일 주문제작 (0) | 2023.07.19 |
| 서스 SUS 열교환기 스팀코일 SUS304 STS304 서스코일 전문제작 (0) | 2023.06.08 |