연일 매서운 영하의 날씨입니다.
겨울다운 겨울이 왔습니다.
시설물 관리와
건강관리에
더욱 신경 써야 하는
날씨입니다.
제주도에서 코일 제작 의뢰가
들어왔습니다.
스팀을 이용하여
난방을 하는
공조기 스팀 히팅 코일입니다.

제작 의뢰 주신 코일은
총 2개 입니다.

두개 모두 스팀코일입니다.
2m 짜리 1개와
1m 짜리 1개 입니다.
둘다 소형 스팀코일이지만
나이스냉동기에서는
정성을 다해
제작해 드렸습니다.
코일 제작에 필요한 사이즈는
현장에서 설비 업체 사장님께서
사진으로 보내주셧습니다.


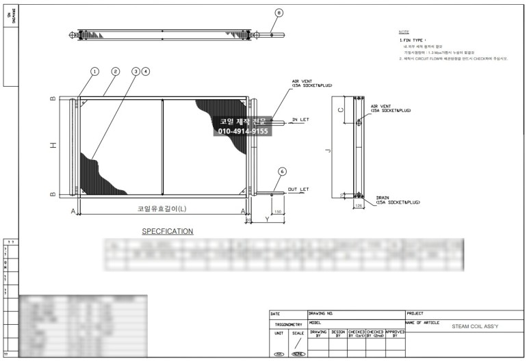
제품의 전체적인 외형입니다.
코일의 단수와 열수를 알 수 있도록
헤더부분도 촬영해 주셔야 합니다.


제품 제작에 필요한 사이즈는
제품에 줄자를 대고 사진을 찍어서 보내주시면
사진을 확대해가면
제품 사이즈를 확인할 수 있습니다.
제품 치수를 확인하고
CAD를 이용하여
공조기 코일 도면을 작성합니다.

도면이 없던 코일이였지만
이제 CAD 도면이 생겼습니다.
도면의 유무는 아주 큰 차이가 있습니다.

완성된 스팀 난방 코일입니다.
AL 백색핀으로 제작해드렸습니다.
핀이 균일하게 아주 잘 나왔습니다.

스팀 코일의 경우
높은 압력에도 열교환기 코일이 견디도록
두꺼운 동 배관 튜브를 이용해
제작해드리고 있습니다.

현장에서 어려움없이
손쉽게 작업하실 수 있도록
입출구 연결배관도
여유있게 제작해 드렸습니다.

동자재 또한 국산 1급 메이커의
국산 동관 튜브를 이용하여
제작해 드렸습니다.

제품 검수가 끝났다면
운송 중 파손되지 않도록
꼼꼼하게 포장을 실시합니다.

취약한 AL핀 부분을 두텀게 감싸주고
스트레치 필름으로 감싸줍니다.

제품 테스트에서 압력을 걸어
누설여부를 확인하고
출고전
누설여부를 현장에서 확인하도록
질소 주입후
누설 확인 압력게이지를 장착해 드립니다.

가로 2m 높이 1m의 스팀 코일입니다.

제품 내부에 질소
10kg/cm^2 주입하였습니다.

현장에서 제품 수령시
게이지를 통해
누설여부를 파악할 수 있습니다.

제주도 혼적 5ton 화물을 불러
제품을 안전하고 저렴하게
상차해 드렸습니다.
'공조기 응축기 열교환기 코일제작' 카테고리의 다른 글
| AHU 공조기 코일제작 열교환기 FANCOIL 공조기냉수코일 교체 제작 과정 소개 (0) | 2024.03.06 |
|---|---|
| 수원 군부대 공조기 코일 제작 방법 냉수 온수 스팀 라디에이터 응축기 제작방법 (0) | 2023.12.20 |
| 냉수온수 AHU, 공조기 코일 빠르게 제작하는 방법 이원냉동기응축기 제작 출고 (0) | 2023.10.25 |
| 열교환기 코일 주문 제작 바닥상치형 공조기 코일 주문제작 (0) | 2023.07.19 |
| 서스 SUS 열교환기 스팀코일 SUS304 STS304 서스코일 전문제작 (0) | 2023.06.08 |