안녕하세요
나이스 입니다.
날씨가 더워질수록
AHU, FCU, CDU, COIL
공조기 코일 열교환기
제작 문의가 많아지고 있습니다.
연락을 주신 분들이 가장 많이 하시는 질문이
1. 제작 비용이 얼마인가요?
2. 제작은 며칠이나 걸리나요?
3. 더 빨리 제작하려면 어떻게 해야 하나요?
입니다.
공조기는 외형 재질 사이즈가 다양합니다.
그래서 동일한 사양이 거의 없습니다.
형태에 따라
공조용 응축기용 열교환기용 등등
다양하게 사용됩니다.

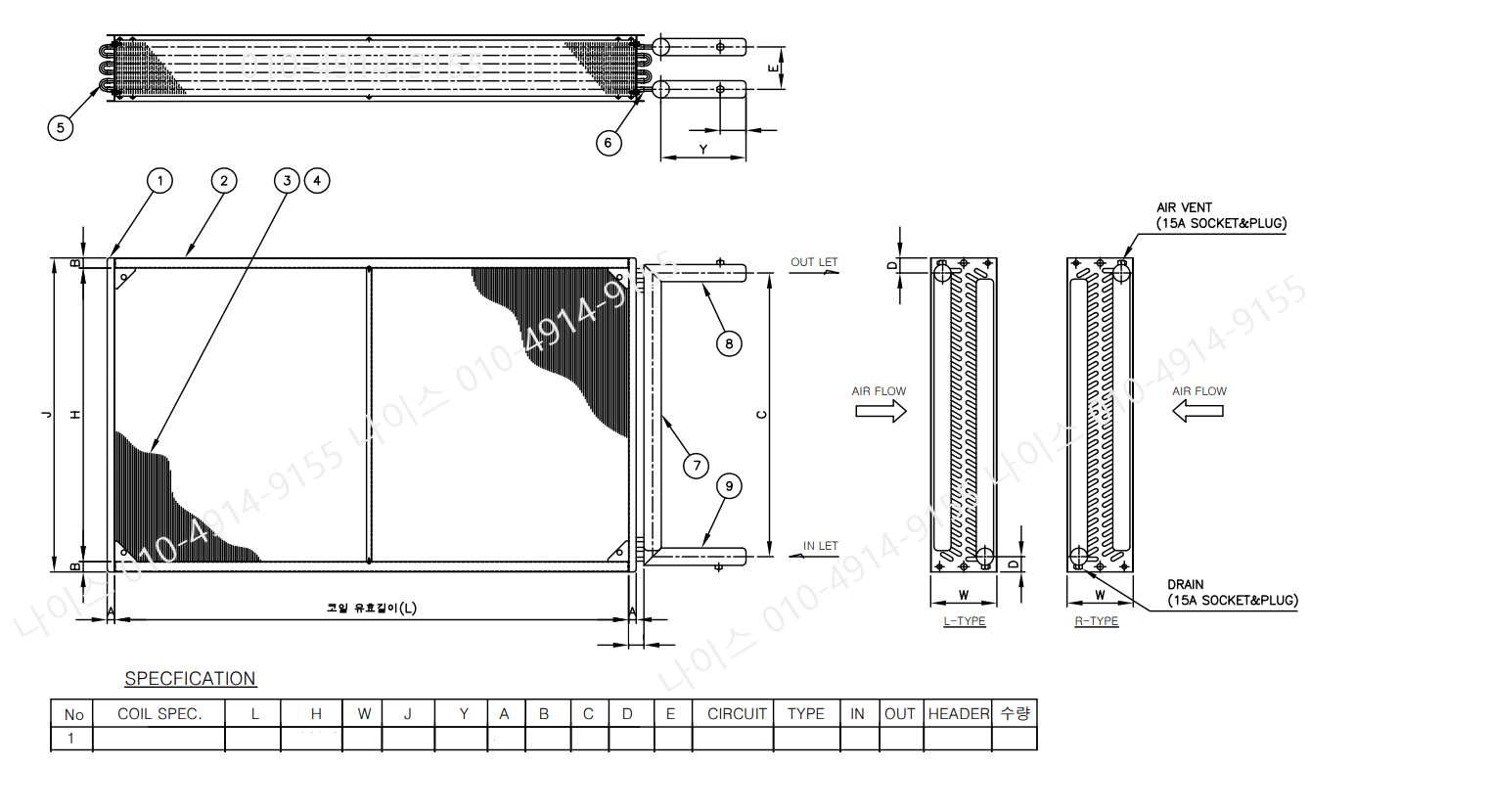
보통 제작이 되는
공조기 도면입니다.
이 도면을 보시고 제품의 사이즈와
제품 사진을 함께 보내주시면
신속한 견적과 저렴한 가격으로
코일을 제작하실 수 있습니다.

위의 도면을 토대로
공조기 코일이 제작됩니다.
공조기 코일은 외형 사이즈만으로
가격이 결정될까요?
아닙니다.
공조기 코일의 견적 가격은
1. 코일의 가로 세로 높이 크기
2. 열수와 단수
3. 입출구 헤더의 크기
4. 핀 피치 및 핀의 종류
5. 동관 튜브의 규격
15.88 (5/8")
12.7 (1/2")
9.52 (3/8")
6.35 (1/4")
규격에 따라 가격이 정해집니다.
제작 기간은 보통 7일에서 15일 걸립니다.
때문에
노후된 코일이라면 미리 제작을 준비해야 합니다.

누설이나 누수가 진행 중인
공조기 코일을 방치한다면
주변 기기들 또한 누설과 누수로 인해
고장을 야기할 수 있습니다.
그러므로 빠른 시일 내에 코일을 교체해야 합니다.
나이스에서는 코일제작을 전문으로 해드립니다.
이해하기 어려운 것들도
천천히 친절하게 상담해 드리겠습니다.
'공조기 응축기 열교환기 코일제작' 카테고리의 다른 글
| 공조기 코일 누설 주문제작 AHU FanCoil 열교환기 에바코일 응축기 제작 (0) | 2023.05.17 |
|---|---|
| 다이킨 열교환기 동파 코일제작 납품 (0) | 2023.05.09 |
| 열교환기 라디에이터 제작 스팀코일제작 전문업체 공조기 응축기 (0) | 2023.05.04 |
| 공조기 열교환기제작 라디에이터 코일제작 에바핀제작 콘드주문제작과정 리뷰 (0) | 2023.05.01 |
| 공조기 AHU 열교환기 코일 제작 방법 응축기 라디에이터 제작 방법 (0) | 2023.04.28 |