
오늘 리뷰하게 될 코일은
국내 유명 제약회사
셀*** 공장의 히팅 코일입니다.
보안상의 이유로 업자분께서
소량의 사진 자료만을 주셨는데요
제작하기 까다로울 것 같아 처음에는
제작을 못 해 드리겠다고 거절을 했었습니다.
한가한 시즌에는
시간이 걸리더라도 제작을 해드리는데
요즘 같은 시즌에는 너무나 바빠서
제작을 못 해 드린다고
정중히 거절을 한 상황이었습니다.
그러나
다른 곳에서는 아예 제작 자체를 못한다고 하니
바쁘지만...
다시 한번 치수를 확인하고
나이스에서 자체 도면을 그려서
제작을 해드리게 되었습니다.

제작하게 된 열교환기 히팅 코일은
유럽 내 코일 제조업체로 유명한
HPM사의 히팅 코일입니다.
HPM사는
폭스바겐, BMW, 아우디, 푸조 시트로엥
칼자이스, 인텔 등등
유명 회사 공장에 들어가는
#AHU공조기코일 을
제작하는 회사입니다.
셀*** 제약 회사도 역시


HPM사의 코일이 유명하긴 하지만....
주문하여 제작하고
그대로 가져와서 장착하려면
비용과 시간이 너무나 많이 들어가기 때문에
국내 제작을 하기 위해 요청이 들어왔습니다.
덕분에 비용은 HPM사 코일의
배송비 정도의
금액으로 코일을 완벽하게
제작하였네요
납기도 최단 시간으로 제작해서
납품해드렸습니다.

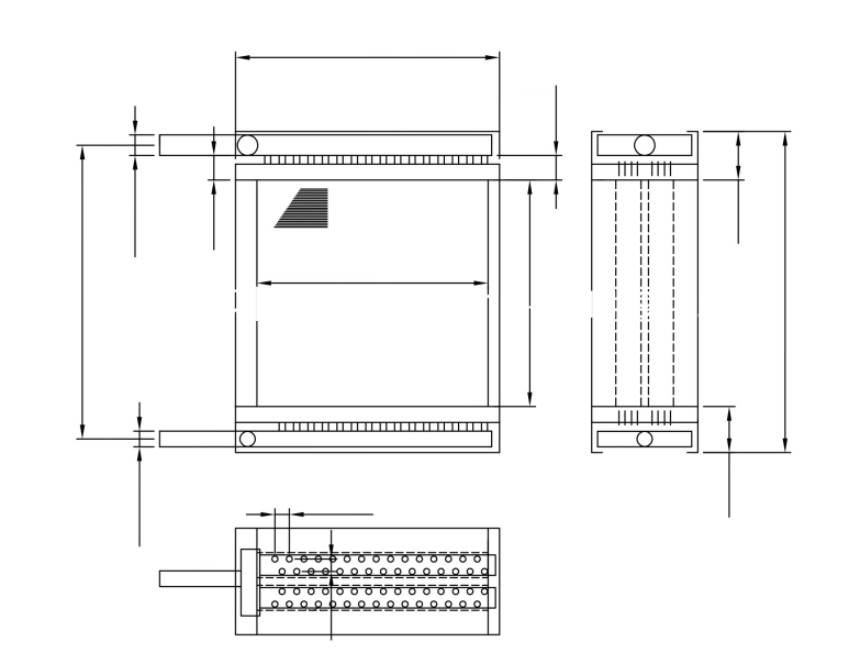
프래임부터 독특하네요

코일의 우측면부 모습입니다.
헤더가 좌우로 위치하고 있네요


AL 핀 또한 균일하게 밀린 곳 하나 없이 아주 잘 나왔습니다.

CAD 작업을 통해
현장에서 설치 시 오차 없이
아주 쉽고 간단하게 교체가 가능하도록
세세한 사이즈 하나하나 신경 써서
제작을 해드렸습니다.
덕분에 현장에서
어려움 없이 쉽게 교체 작업을 잘 끝냈다는
말씀을 해주실 때 아주 힘이 됩니다.
'공조기 응축기 열교환기 코일제작' 카테고리의 다른 글
| AHU 공조기코일 응축기코일 주문제작 (0) | 2023.06.07 |
|---|---|
| 공조기 코일 라디에이터 제작 열교환기 제작 후기 및 제작하는 방법 (0) | 2023.06.02 |
| 농업용 팬코일 시설 하우스휀코일 비닐하우스휀코일 냉난방물콘 농가용 물콘 라디에이터제작 (0) | 2023.05.31 |
| 공조기 코일 누설 주문제작 AHU FanCoil 열교환기 에바코일 응축기 제작 (0) | 2023.05.17 |
| 다이킨 열교환기 동파 코일제작 납품 (0) | 2023.05.09 |